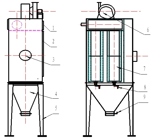
滤筒除尘器以滤筒作为过滤元件所组成或采用脉冲喷吹的除尘器。 滤筒除尘器按安装方式分,可以分为斜插式,侧装式,吊装式,上装式。 滤筒除尘器按滤筒材料分,可以分为长纤维聚酯滤筒除尘器,复合纤维滤筒除尘器,防静电滤筒除尘器,阻燃滤筒除尘器,覆膜滤筒除尘器,纳米滤筒除尘器等。
滤筒式除尘器早在20世纪70年代就已经在日本和欧美一些国家出现,具有体积小,效率高,投资省,易维护等优点,但因其设备容量小,难组合成大风量设备,过滤风速偏低,应用范围窄,仅在粮食、焊接等行业应用,所以多年来未能大量推广。近年来,随着新技术、新材料不断地发展,以日本,美国的公司为代表,对除尘器的结构和滤料进行了改进,使得滤筒除尘器广泛地应用于水泥、钢铁、电力、食品、冶金、化工等工业领域,整体容量增加数倍,成为过滤面积>2000m2大型除尘器(GB6719-86类),是解决传统除尘器对超细粉尘收集难、过滤风速高、清灰效果差、滤袋易磨损破漏、运行成本高的最佳方案,和市场上现有各种袋式、静电除尘器相比具有有效过滤面积大、压差低、低排放、体积小、使用寿命长等特点,成为工业除尘器发展的新方向。
应用领域
耐火材料加工除尘、炼钢电炉烟气除尘、磨料加工车间除尘、电石炉生产除尘、高炉煤气净化、煤粉制备除尘、沥青混凝土生产除尘、炭黑生产除尘、建材加工除 尘、化工行业除尘、橡胶生产行业除尘、烟草车间除尘、制药车间除尘、木工家具车间除尘、电解铝加工除尘、铝锌冶炼过程中除尘等,均可以使用脉冲滤筒除尘器。










